Dịch vụ thiết kế thi công trọn gói nội thất căn hộ chung cư 48m2 tại TPHCM bao gồm :
– Bản vẽ bố trí mặt bằng nội thất
– Bản vẽ phối cảnh 2D, 3D
– Bản vẽ chi tiết các sản phẩm
– Bản vẽ tổng thể căn hộ : trần, tường, đèn, đồ trang trí……
Tạo điểm nhấn, tối ưu không gian sử dụng cho căn hộ chung cư nhỏ 48m2
Thiết kế phong cách phù hợp với gia chủ
Thiết kế phù hợp với phong thủy
Phối hợp màu sắc hài hòa
BẢO HÀNH 1 NĂM.
Vật liệu : Chất liệu Gỗ MDF, MFC cao cấp phủ Melamine . Đã qua xử lý mối, mọt, chống cong vênh.
Màu sắc : trắng , xanh, đỏ, vân gỗ hoặc tùy chọn
Trọn gói nội thất cho căn hộ chung cư 48m2 bao gồm :
* PHÒNG KHÁCH : kệ tivi + tủ treo trang trí + kệ treo ly + bàn trà + tủ giày dép.
* PHÒNG BẾP : Bộ kệ bếp trên + bếp dưới + mặt đá bếp + kính ốp bếp
* PHÒNG ĂN : Bàn ăn 1.4m + 4 ghế ăn (ghế nhựa, chân gỗ) + Tủ trưng bày
* PHÒNG NGỦ LỚN : giường 1.6m 2 hộc kéo + tủ đầu giường +Tủ áo 1.5m x 2.2m + quạt góc + bàn trang điểm + gương + kệ mỹ phẩm + ghế.
* PHÒNG NGỦ NHỎ : giường 1.4m + tủ đầu giường + tủ áo 1.2m x 2.2m + bàn học đa năng + kệ sách treo+ ghế
Căn hộ chung cư với diện tích nhỏ luôn cần đến sự thông minh trong thiết kế và bài trí, bạn cần trang trí mọi thứ thật đơn giản nhưng vẫn có đầy đủ các không gian chức năng cơ bản bao gồm 1 phòng khách, 1 bếp ăn, 1 nhà vệ sinh và 2 phòng ngủ. Bạn chỉ cần bao gồm các đồ nội thất cần thiết và không có gì nhiều hơn nữa. với sự khéo léo trong cách bày trí từ không gian và cách phân bố thông minh nên các không gian chức năng dù nằm trong cùng một phòng nhưng vẫn riêng tư. Đồng thời mỗi góc nhỏ tuy có những điểm nhấn trang trí khác nhau nhưng chúng vẫn có sự liên kết mật thiết để hỗ trợ cho nhau
Quý khách hãy chọn cho mình 1 mẫu nội thất căn hộ chung cư 48m2 đẹp bên dưới và liên hệ chúng tôi để được báo giá tốt nhất nhé.
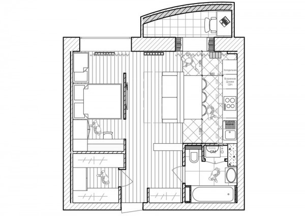
Mẫu 1 :

Mặt bằng thiết kế và bố trí nội thất căn hộ 48m2

Ghế sofa đồng thời là vách ngăn chia không gian phòng khách và bếp

Tuy nhỏ gọn và khá đơn giản nhưng phòng bếp vẫn đầy đủ các tiện nghi cần thiết

Mảng tường phòng bếp, tường và trần nhà đều dùng gam màu nhẹ nhàng để tạo cảm giác rộng rãi

Góc làm việc tại gia hoàn hảo với bộ bàn ghế và giá sách tiện ích

Phòng ngủ nhỏ nên chủ nhà tận dụng gầm giường lưu trữ đồ đạc, kể cả sách

Phòng tắm với thiết kế bồn rửa mặt âm tường độc đáo
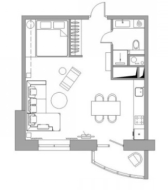
Mẫu 2 : Phòng khách và phòng ăn được bố trí liền kề nhau nhưng nhờ cách phân chia sáng tạo bằng rèm thưa nên các không gian vẫn rất liền mạch mà lại gọn gàng.

Mặt bằng thiết kế và bố trí nội thất của căn hộ 48m2

Phân chia sáng tạo giúp căn hộ nhỏ vẫn có không gian gọn gàng và liền mạch

Sử dụng các loại vách ngăn thông minh kiêm luôn kệ lưu trữ là giải pháp rất hiệu quả cho nhà chật
Phòng ngủ nhỏ được bố trí rất gọn bao gồm cả giường lớn và một chiếc cũi dành cho bé

Tận dụng một góc nhỏ gần cửa sổ để đặt bàn làm việc, vừa tiết kiệm diện tích vừa tận dụng ánh sáng tự nhiên

Phòng vệ sinh dùng hệ tủ lưu trữ các vật dụng cần thiết ngay dưới bồn rửa mặt
Mẫu 3 : Thiết kế theo phong cách tối giản, ưu tiên dùng các gam màu trung tính nhẹ nhàng.

Mặt bằng thiết kế và bố trí nội thất căn hộ 48m2

Mẫu căn hộ này có phòng khách và phòng ngủ bố trí liên thông

Vì không có tường ngăn nên tạo được cảm giác rộng rãi cho căn hộ nhỏ

Phòng tắm với mảng tường ốp gạch độc đáo



Reviews
There are no reviews yet.